Sensor holder for mounting to rack 19"
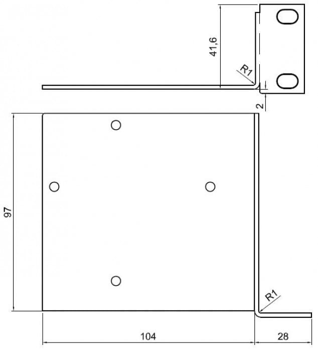
Universal holder for P8xxx and Txxxx Web Sensor for easy mounting to rack 19". Nuts and washers needed to installation are included.
-
codeMP046
- 330 ZAR
Universal holder for P8xxx and Txxxx Web Sensor for easy mounting to rack 19". Nuts and washers needed to installation are included.